Capstone Builders
P.O. Box 1052
South Bend, IN 46624
(574) 855-2061
CapstoneBuilt.com
Builder: Craig Taelman

- about the builder -

We build custom homes of all sizes and tackle remodels ranging from simple bathroom renovations to complicated room additions. Quality, integrity, and experience: these are the most important things to keep in mind when evaluating your prospective contractor. We believe that once you meet with us, you'll see what hundreds of clients have seen before - the right choice for you.


Location #3 on your Showcase Map

1015 Stanfield St, South Bend, IN 46617


Stanfield Front.jpg

- description -

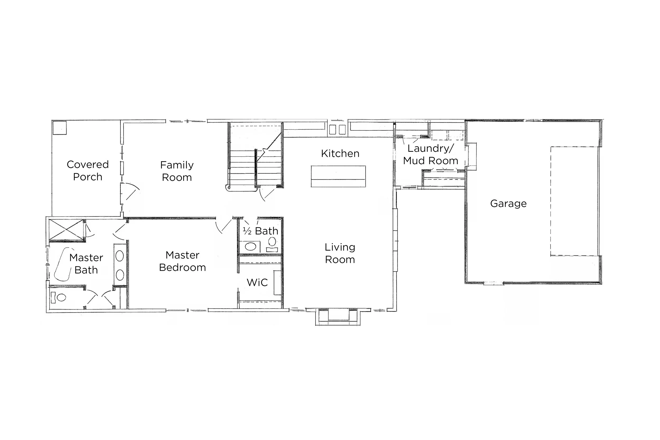
This smartly designed floorplan features a soaring living room open to the gourmet island kitchen. Main floor master suite offers large private bath with dual vanity, free standing tub, and tile shower. The second floor offers generously sized bedrooms and a loft overlooking the main floor living areas. Main floor laundry, large sitting room overlooking the covered front porch, finished basement with large family room and bar, 4th bedroom and full bath, 2 car rear-load attached garage and more!


Main Floor Plan

Main Floor Plan

Foundation Plan

Foundation Plan


 

- special features -

2 Story Great Room
Gas Log Feature Fireplace
Main Level Master Suite
Finished Basement
White Shaker Kitchen Quartz Countertops
Luxury Plank Flooring
Freestanding Tub
Custom Tile Shower
Main Level Laundry

 

-Additional Info-

Type of Home: 2-story
Style of Home: Single Family
List Price: $479,900
Total Square Footage: 2,018
Bedrooms: 4
Bathrooms: 2.5

- Reason to see this home -

As urban living continues to gain popularity, this home in the popular Northeast Neighborhood offers everything you'd find in a suburban home, repackaged for a city setting.


DIRECTIONS TO HOME:

From Indiana 933/Business 31 turn east on Howard, then north on Stanfield.